5 Swain Crescent

$705,900

1556 sqft
5 Swain Crescent, Collingwood, ON L9Y 5T3
The Forest (Upgraded) | Lot 43

SALES MANAGER
Melinda Anley-Grams
Melinda@sunvalehomes.com
519-341-6443 Ext 101

 
 

Property Summary

  • Address: 5 Swain Crescent, Collingwood, ON L9Y 5T3

  • Price: $705,900

  • Square Footage: 1556 sq. ft.

  • Bedrooms: 3

  • Bathrooms: 2.5

  • Garage: 1.5-car garage

Key Features

  • Central Air Conditioner

  • 2nd Floor Laundry

  • 3 PC Rough In Basement Bathroom 

  • Garage finished to Prime

  • Upgraded 8’ Interior Doors (main floor), trim package throughout, and interior hardware

  • Engineered Hardwood Flooring on Main Floor, 2nd Floor Hall & Primary Bedroom

  • Upgraded Carpet in Bedroom 2 & 3 

  • Modern Oak Stairs from Main to 2nd Floor

  • Upgraded 12' x 24" tiles in all bathrooms

  • Quartz counters in the Kitchen, Main bathroom & Ensuite

  • Glass front Shower in Ensuite

  • Custom Paint Colour Throughout

  • Electric Fireplace 

  • Upgraded Hardware Throughout

  • Appliances:

    • Fridge

    • Range

    • Dishwasher

  • Upgraded Kitchen pkg Includes:

    • Custom Paint Colour & Stained Island

    • Microwave Shelf

    • Pots & Pans Drawers

    • Deep Fridge Upper Cabinet with Gables

    • Garbage Pullout

    • Soft Close Doors & Drawers

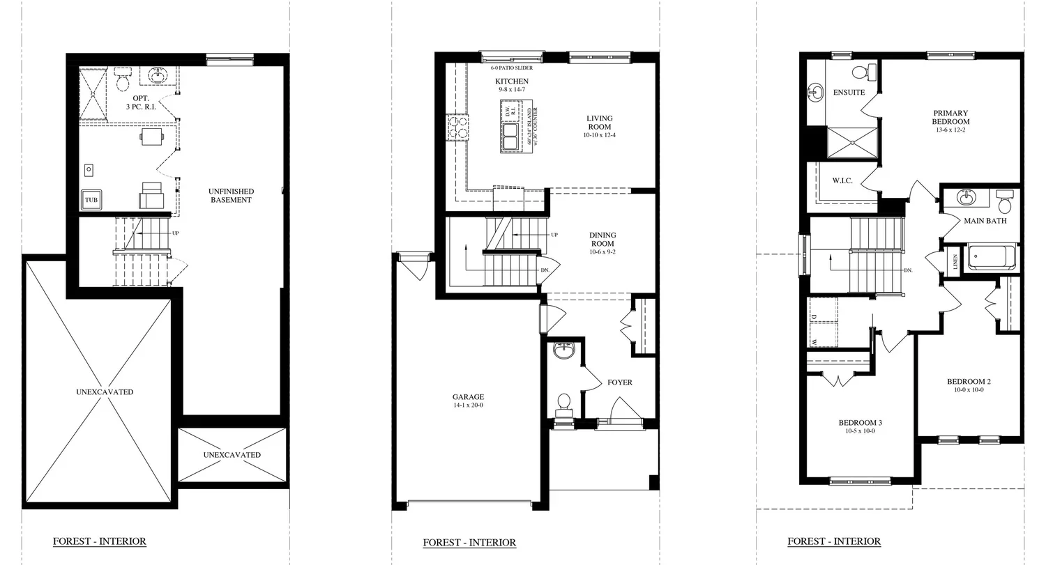
Floorplans

 
 

Sales Contact & Model Home

Sales Manager: Melinda Anley-Grams
Phone: 519-341-6443 Ext 101
Email: melinda@sunvalehomes.com

Model Home Hours
Saturday - Sunday: 11:00am - 4:00pm
Monday - Wednesday : 12:30pm - 6:30pm
Thursday & Friday: CLOSED
*No Appointment Necessary

 

Looking for something else?

We’re proud to have built custom homes for more than 35 years.