Quick Move-Ins
Collingwood
Durham West Grey
Why Sunvale
Homeowners
Realtors
Contact Us
Back
Our Story
Service Commitment
Awards
Testimonials
RBC Green Home Mortgage
Quick Move-Ins
Collingwood
Durham West Grey
Why Sunvale
Our Story
Service Commitment
Awards
Testimonials
RBC Green Home Mortgage
Homeowners
Realtors
Contact Us
← Back to Poplar Trails
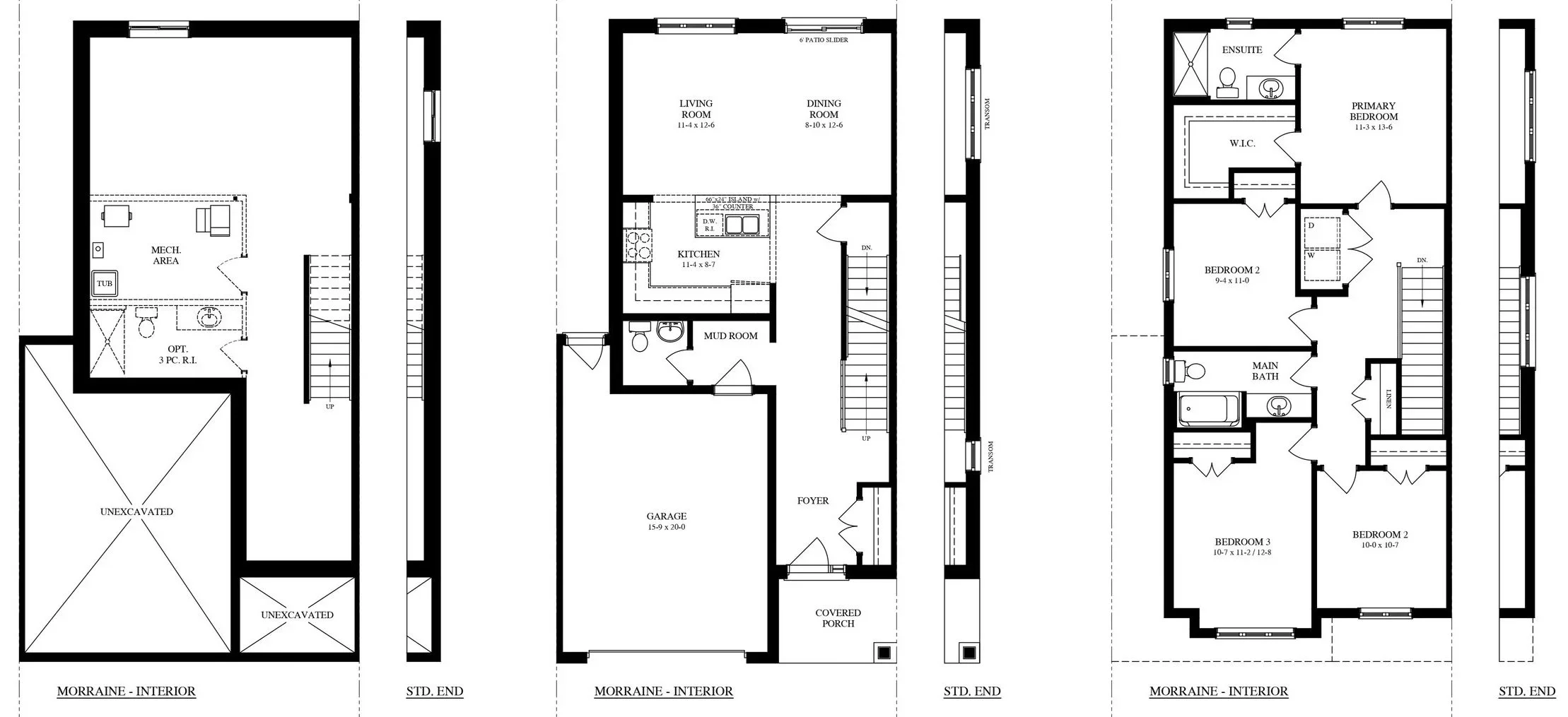
The Morriane
1794 sqft. | Poplar Trails | In Collingwood
The Morraine Floorplans
Poplar Trails Site Map